Деревянные лестницы изготовление и монтаж
Тел: +7 (911) 924 03 25

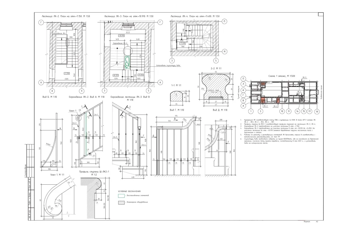
Реставрация и ремонт деревянных перил лестницы, чертежи.

проект перил для лестницы

Реставрация ограждения лестниц. Условные обозначения: Восстановление кладки M 1:1; Наращивание / дорабатка M 1:1.

В проекте присланный нам для изгтовления новых наклонных поручней, указаны размеры профиля и конфигурация, со схемой расположения на металлическом ограждении.

Сама лестница находится в здании старинной постройки в котором идут рестиаврационно-ремонтные работы города Санкт-Петербурга. По техническому заданию нужно частично отремонтировать и сделать некоторые новые элементы перил определенной конфигурации.

Стоимость производства деревянных поручней из массива дуба (в данном случае) зависит от профиля перил (на чертежах) и изготовления наклонных (гнутых, поворотных, радиусных) элементов поручней.

Пример изготовления и этапы сборки гнутых перил из массива бука (технология склейки палубы) на металлическое ограждения бетонной лестницы, Вы можете посмотреть » » » и для образца скачать фото.

Гнутые перила бывают наклонные по высоте (как в этом заказе), с 3Д поворотом, разворотом на 45/90/180 градусов). Соответственно делается в каждом случае по индивидуальным размерам и профиль поручня.

Обычно мы делаем перила гнутые под стантартный профиль омего образного типа 50*70, 45*75 и так далее. Так легче подобрать фрезу определненного размера. Но в случаях (особенно в реставрации) делать профиль под определенный размер, приходится зачастую дорабатывать вручную. Это трудоемкая и неторопливая работа требует терпения и навыков.

Для примера можете посмотреть наши некоторые работы по изготовлению поворотных перил и гнутых поручней для бетонных, деревянных и лестниц из металла. Цены на перила радиусные по СПБ от 150 000 за элемент (сам поворот 40 - 1200 см длиной). Прямые стандартные перила из дуба, стоят от 1800 за метр погонный.


Примеры выполненных работ нашей фирмой по облицовке лестниц из металла и бетона в СПб и ЛО деревом (дуб, ясень, лиственница, береза, сосна, ясень), с различными видами ограждения из дерева, со стеклом, с кованными балясинами или с трубками.

отделка дубом с кованными балясинами
Обшивка дубом бетонной лестницы с кованными балясинами. подробнее

ступени дуб, подсветка, гнутый поручень
Отделка дубом гнутые перила, подсветка, пригласительные 2 шт. подробнее

ступени шпонированные дубом
Обшивка бетонной, ступени шпон дуба ограждение с ковкой. подробнее

облицовка бетонной лестницы деревом ясень
Отделка: ступени ясень, дизайнерские перила, столбы, навершия. подробнее

облицовка бетонной лестницы ступенями из дуба
Облицовка ступенями из дуба, ограждение с каннелюрами из сосны. подробнее

обшивка каркасов двух лестниц из металла под ключ
Обшивка каркасов двух лестниц из металла с подсветкой ступеней. подробнее

дизайнерская отделка 2 лестниц из металла
Дизайнерская отделка металлокаркаса с ограждением из стекла. подробнее

облицовка бетонной лестницы дубом
Облицовка лестницы с пригласительными ступенями дубом. подробнее

облицовка бетонной лестницы дубом
Отделка лестницы дубом с полукруглыми ступенями. подробнее

облицовка бетонной лестницы дубом
Облицовка бетонной лестницы дубом с гнутым поручнем. подробнее

ступени фанера + шпон дуба
Ступени палуба 6 мм дуба, ограждение бук. подробнее

облицовка лестницы на металлокаркасе дубом
Облицовка лестницы на металлокаркасе дубом с кованным ограждением. подробнее


Столярное производство по изготовлению различных изделий и конструкций из дерева. Уникальные проекты по индивидуальным размерам, под заказ. Дизайнерские перила, ограждения, стартовые столбы из дуба, ясеня, бука, ореха. Качественные материалы. Заказывайте!

Монтаж под ключ. Современноые технологии. Гарантия сроков. Добросовестный профессиональный подход во всех мелочах. Опыт более 20 лет, непьющие на работе, мастера краснодеревщики не криворучки. Звоните +7 (911) 924-03-25, с 9.00 до 19.00, без выходных.

Скидка на деревянную лестницу.

При заказе 3 лестниц, Мы существенно сделаем Вам скидку.

ПОЛУЧИТЬ СКИДКУ!
Сервис обратного звонка RedConnect