Деревянные лестницы проект из металла
Тел: +7 (911) 924 03 25

Перила изогнутые из дерева для винтовой лестницы, размеры.

деревянные перила на лестницу деревянные перила на лестницу деревянные перила на лестницу деревянные перила на лестницу

Вариант гнутых перил, тех задание с чертежами. Деревянные изгибы и повороты поручня для лестницы на заказ в СПб.

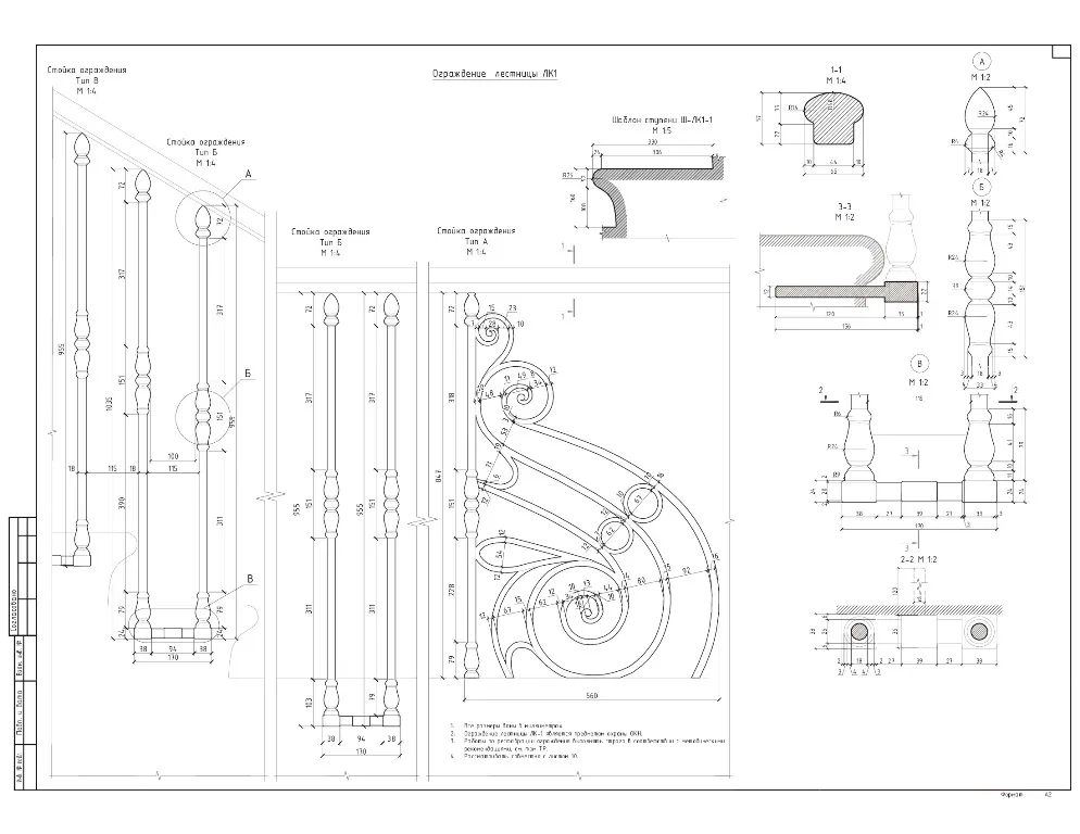
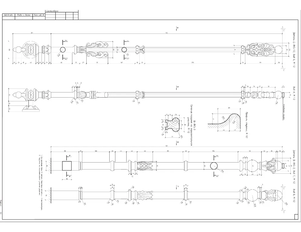
Это техническое задание из комплектов чертежей, прислал нам для оценки стоимости изготовления различного профиля деревянных поручней, на металлическое ограждение в старинном здании.

Примечания:

1. Деревянный поручень: Профиль поручня применить по аналогии с поручнем ограждения лестничной клетки (дуб, пропитка маслом Osmo).

2. Работы по реставрации ограждения выполнять строго в соответствии с методическими рекомендациями, см. том ТР.

3. Реставрация, ремонт и приспособление для современного использования объекта культурного наследия федерального значения.

Цена изготовления перил с изогнутым профилем под определенный размер и радиус (градус) поворота в среднем по Санкт-Петербургу от 45 000 рублей за один поворотный элемент (дуб, ясень)

Цены на изготовление порямого пручня, но под определенный размер и конфигурацию от 5 000 рублей за метр погонный (дуб, ясень). Обычный готовый поручень прямой из дуба, омего образный продается в магазинах от 1 800 ру/м. пог.

Зачастую поручень под заказ, не всегда можно сделать стандартными фрезами, и нужно дорабатывать вручную специалным инструментом. Да и фрезы нужно покупать под определенную конфигурацию и размер. Поэтому стоимость перил разница на порядок.

Гнутые деревянные перила на лестницу по индивидуальным размерам, фото и технология изготовления, Вы можете посмотреть на этой странице » » » нашего сайта.

Изготовление из дуба, ясеня, бука, ореха и монтаж на лестницу гнутых перил для лестниц. При комплексном заказе, на обшивку бетонной или металлической лестницы деревом, сделаем скидку на перила из массива дуба 25%.


На фото изготовление и установка гнутых поручней (перил) на лестницу с пригласительными ступенями.

гнутый поручень для лестницы гнутый поручень для лестницы гнутый поручень для лестницы гнутый поручень для лестницы

Технологию изготовления и установки гнутых перил из бука, Вы можете посмотреть на этой странице » » » нашего сайта.


Этапы изготовления и установки поворотных перил из дуба для металлического ограждения лестницы из бетона.

поворотный поручень из дуба поворотный поручень из дуба поворотный поручень из дуба поворотный поручень из дуба

Фото изготовления и монтажа гнутых и прямых поручней Вы можете посмотреть на этой странице » » » нашего сайта.


Этапы изготовления и установки гнутых перил из дуба для металлического ограждения лестницы из металла.

гнутый поручень из дуба для лестницы из металла гнутый поручень из дуба для лестницы из металла гнутый поручень из дуба для лестницы из металла гнутый поручень из дуба для лестницы из металла

Этапы изготовления и фото установки поворотных и прямых перил из дуба Вы можете посмотреть на этой странице » » » нашего сайта.


На фото этапы изготовления и монтажа радиусных перил для бетонной лестницы из дуба и сосны.

изготовление гнутых перил из дерева изготовление гнутых перил из дерева изготовление гнутых перил из дерева изготовление гнутых перил из дерева

Фото изготовления и монтажа гнутых и прямых поручней Вы можете посмотреть на этой странице » » » нашего сайта.


Обшивка бетонной деревом (шпонированные ступени) винтовой/забежной лестницы из бетона с гнутыми перилами под заказ в СПб.

отделка бетонной, гнутые перила отделка бетонной, гнутые перила отделка бетонной, гнутые перила отделка бетонной, гнутые перила

Фото уже установленного ограждения с радиусным поручнем и вместо простых балясин, сделаны из трубок 25 мм, Вы можете посмотреть на этой странице » » » нашего сайта.


Фото изготовленных гнутых поручней из дуба на 180 в 3Д, с деревянными балясинами, на бетонной лестнице.

ступени дуб, подсветка, гнутый поручень ступени дуб, подсветка, гнутый поручень ступени дуб, подсветка, гнутый поручень ступени дуб, подсветка, гнутый поручень

Фото отделки бетонной лестницы дубом с поворотными поручнями Вы можете посмотреть на этой странице » » » нашего сайта.


Этапы производства гнутых перил. В ограждении установлены трубки алюминиевые 25 мм диамтром, покрашенные порошковой краской.

технология изготовления гнутых перил для лестницы из дерева технология изготовления гнутых перил для лестницы из дерева технология изготовления гнутых перил для лестницы из дерева технология изготовления гнутых перил для лестницы из дерева

Скидка на деревянную лестницу.

При заказе 3 лестниц, Мы существенно сделаем Вам скидку.

ПОЛУЧИТЬ СКИДКУ!
Сервис обратного звонка RedConnect