Деревянные лестницы сосна, лиственница, дуб
Тел: +7 (911) 924 03 25

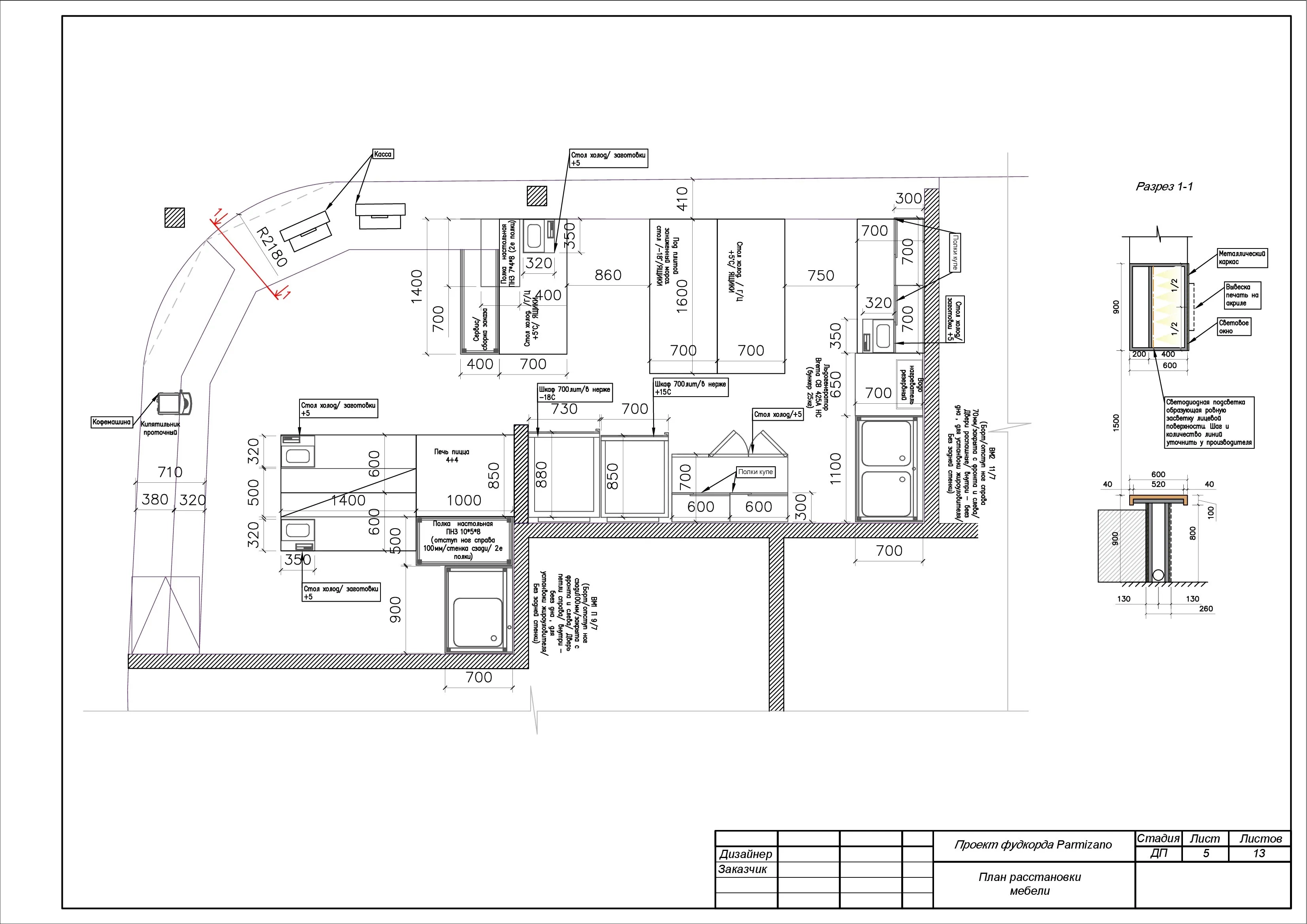
Чертежи с размерами полукруглой столешницы для барной стойки кафе.

дизайн проект столешницы для барной стойки дизайн проект столешницы для барной стойки дизайн проект столешницы для барной стойки дизайн проект столешницы для барной стойки

На странице мы разместили дизайн проект с размерами, барной стойки в кафе бистро фасфуд. По данным размерам нами сделаны несколько столешниц согласно технического задания и описания (см. ссылки внизу стр.).

Фото установки и этапы изготовления столешницы » » » более 12 метров длиной (сделана из нескольких деталей, элементов). Стоимость изделия (без установки) 36 000 рублей за метр квадратный. Срок производства такой полукруглой столешницы 18 рабочих дней.

Подробные фотографии еще нескольких столешниц из этого заказа, мы разместим чуть позже. После установки. Можете ознакомится с технологий и преимуществом шпонированного МДФ или фанеры для подоконником, ступеней лестниц, оконных откосов, крышек столов, мебели, дверей и других столярных изделий (ссылка ниже).

Фанера шпонированная (палуба) дуб, ясень, бук, орех: лестницы, ступени, крышки для столов, столешницы для кухни и ванной. Фото, описание технологии (паркетная склейка), стоимость изготовления » » ».

Столешницы, подоконники, решётки на батареи и оконные откосы, из натурального дерева или шпонированные по лучшей цене с доставкой по СПб. Индивидуальный подход. Высокое качество. Дерево массив, МДФ, фанера, инженерная доска.

Стоимость установки подоконников, оконных откосов, столешиц, каинных плолк и фальшбалок деревянных зависит от количества и сложности конструкции (круглый, полугруглый, радисный). Например один подоконник 40х300х1000мм (без демонтажа строго, без выравнивания откосов и т. далее) мы смонтируем от 5 000 рублей/штука. А 7 - 8 штук, уже от 3 500 руб./шт. (цена 2025 года). Доставку по Санкт-Петербургу сделаем бесплатно.


шпонированные подоконники и откосы
Подоконники и откосы, влагостойкий МДФ + шпон. смотреть фото
подоконник с отверстием под радиатор
Откосы и подоконник с отверстием для батареи. смотреть фото
полукруглый подоконник из мдф
Полукруглый (радиусный) подоконник из МДФ (шпон). смотреть фото
шпонированные подоконники и откосы на окна
Фанера + шпон дуба, откосы и подоконники. смотреть фото
дубовый подоконник
Подоконник из дуба на кухне квартиры. смотреть фото
Подоконник фанера шпон
Подоконник фанера шпонированная дубом. смотреть фото
подоконник из фанеры и шпона ясеня
Подоконник из фанеры и шпона ясеня в квартире. смотреть фото
подоконник шпон дуба
Подоконник из шпон дуба с декоративной решеткой. смотреть фото
шпонированный дубом из МДФ крышка барной стойки
Крышка для стола МДФ, шпон дуба скругленная смотреть фото
барная столешница мдф со шпоном дуба
Барная столешница МДФ + палуба дуба радиусная смотреть фото
подоконники из мдф со шпоном дуба
Подоконники из мдф со шпоном дуба под заказ смотреть фото
подоконники и откосы мдф шпон дуба
Подоконники и откосы из МДФ + шпон дуба. смотреть фото

Скидка на деревянные подоконники.

При заказе на сумму от 50 000 рублей, сделаем скидку 25%.

ПОЛУЧИТЬ СКИДКУ!
Сервис обратного звонка RedConnect